740 Mississippi River Blvd S, St. Paul, MN 

651.698.8866 

Floor Plans

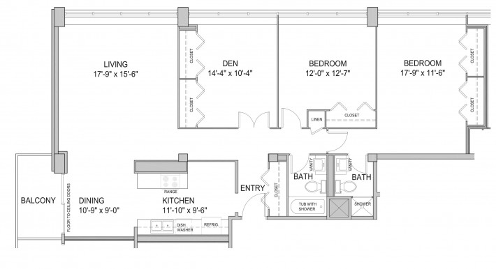
Three Bedroom 3A

Bedrooms
3
Square Feet
1,427
Heat
Individual Heat Control
Garage Type
Heated Garage and/or Covered Parking
d

This Three Bedroom apartment features the largest living room of the three bedroom floor plans. The residence has direct access to the kitchen from the entry way. There is a sizable closet off the entry. The floor plan features a balcony and 1 and 3/4 bath.

$2,334 - $2,627
* Features may vary by apartment.
Pet friendly

Print or Download Floor Plan

 


General Amenities
Interior Amenities
Exterior Amenities
Security Amenities
Community Amenities
Appliance Amenities
Leasing Consultants
740 River Drive

Phone: 651-698-8866
Bedrooms
3
Square Feet
1,427
Heat
Individual Heat Control
Cooling
Air Conditioning
View
South and East
Garage Type
Heated Garage and/or Covered Parking
Leasing Consultants
740 River Drive

Phone: 651-698-8866

Please complete the form below to request a showing for this property. We will review your request and respond to you as soon as possible. Please add any additional notes or comments that we will need to know about your request.

 
Leasing Consultants
740 River Drive

Phone: 651-698-8866

If you would like to send this property to a friend that you think may be interested, please complete the form below. To send this property to multiple friends, enter each email separated by a comma in the 'Friends Email' field.

 
Leasing Consultants
740 River Drive

Phone: 651-698-8866